| Prezzo | Superfice | Locali | Bagno/i | Box auto |
|---|---|---|---|---|
| 260.000,00 € | 144m² | 4 | 2 | singolo |
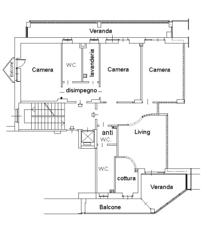
DESCRIZIONE DELL'APPARTAMENTO L'appartamento, con tripla esposizione, è sito al 2° piano con ascensore ed è composto da doppi ingressi, entrambi dotati di portoncino blindato, soggiorno con angolo cottura a vista, disimpegno, 3 camere, doppi servizi, lavanderia, terrazzino verandato, ampia balconata verandata verso lato cortile, due balconi, 2 locali ad uso cantina, ampio box auto 5,20 X 2,70 con cancelli carrai elettrocomandati. L'appartamento ha subito una ristrutturazione quasi totale (ad eccezione di alcuni serramenti che insistono sui balconi verandati) nel 2012. I bagni, la cucina, l'impianto elettrico sono stati ristrutturati ed allo stato attuale l'appartamento si trova in ottime condizioni di manutenzione. Risulta inoltre dotato di impianto di condizionamento caldo/freddo. La disposizione ed il doppio ingresso permettono anche una suddivisione in 2 unità immobiliari senza troppi interventi di ristrutturazione DESCRIZIONE DELLA ZONA Moncalieri frazione Borgo San Pietro a pochi passi dalla Piazza Bengasi e dalla Stazione Metropolitana Bengasi che collega rapidamente con il Centro della città di Torino; a questa si aggiungono numerosi mezzi pubblici nelle vicinanze (Linee 34-35-2- 43-45) e supermercato Carrefour Market in via Genova a 400 metri. Molto comode a qualche centinaio di metri) le scuole pubbliche e private di ogni genere e grado: scuola dell'Infanzia San Matteo, scuola dell'infanzia Peter Pan, Scuola Primaria Gabelli, Scuola Media Statale Pirandello, ITIS Pininfarina DESCRIZIONE DELLO STABILE Stabile dei primi anni '60 in buone condizioni di manutenzione. Rifatta la facciata lato strada. Non sono previsti imminenti lavori straordinari. Riscaldamento centralizzato con valvole termostatiche e ripartitori di calorie tramite il servizio di teleriscaldamento ESPOSIZIONE NORD - SUD - EST - SPESE DI CONDOMINIO € 1.370 circa Annui SPESE DI RISCALDAMENTO € 1.700 circa Annui RENDITA CATASTALE € 766,42 PER L'APPARTAMENTO- € 80,57 PER IL BOX AUTO


Se non visualizzi il contenuto clicca qui per abilitare i cookie.
Se non visualizzi il contenuto clicca qui per abilitare i cookie.